CBX

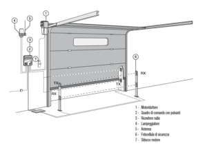
CAME mootor C-BXK tagab suurema pöördemomendi väga raskete tõstuste liigutamiseks.
Sobib paigaldamiseks tööstuslikele tõstustele, aga ka väga suurtele garaažiustele.
Pöörde ülekanne uksele toimub keti abil, mis võimaldab mootori paigaldada mistahes asendis seinale või ka lakke, kui ruumi on vähevõitu.

  • Lihtne käsitsi avada
  • Sobib paigaldamiseks nii vertikaalses kui horisontaalses asendis
  • Saadaval mootor 230-400V on töötav 3-faasilisel vahelduvvoolul, varustatud impulsianduriga suurema veojõu ja maksimaalse ohutuse tagamiseks
  • Sobib tiheda kasutusega tõstustele
  • Tööstuslik mootor

( Kaugjuhtimispulte ja GSM terminali mobiilseks juhtimiseks saab tellida#nbsp;eraldi)

Paigalduse hindade ja lisaseadmete kohta saate informatsiooni meie müügikontorist

Dokumentatsioon:

Broshure

Download FASCICOLO C-BX MULTI04 A4 (IT, EN, FR, RU)
Download CBX conformity declaration (CE)

Download CBX conformity declaration (CE ROHS)

Far far away, behind the word mountains, far from the countries Vokalia and Consonantia there live the blind texts.